Project 07
20 . 03 _ H _ LA ROCH

LE BANANA SPLIT
QUAI MAUBEC
17000 LA ROCHELLE
CHARENTE-MARITIME
L’enjeu n’est pas ici de rafraîchir ou de remettre au goût du jour. Non. L’ambition est avant tout structurelle et architecturale pour introduire des prolongements.
Cette réhabilitation repousse les limites de la structure actuelle, apathique et encombrante. Une exo-structure est greffée à la première pour soulever le bâtiment et décupler ses capacités de portée. L’ossature est redressée afin d’ouvrir et dilater les espaces. Ainsi l’intérieur s’affranchi de la géométrie de la parcelle et son organisation est repensée afin de prolonger les usages et les appropriations.
Prolongement aussi avec l’histoire du lieu et le contexte dont il fait parti. Sa façade est conservée et participe à continuer le récit. Prolongement avec le port et le quartier: le restaurant conçu comme une coque de bateau renversée, soutient l’édifice et estompe ses limites intérieures pour les confondre avec l’espace public. Et à défaut d’avoir un balcon, l’extérieur se prolonge dans certaines chambres grâce à des fenêtres atypiques et modulaires qui se transforment en table. Pour un verre, travailler ou contempler.
Autant de prolongements qui réinscrivent ce petit hôtel face à son port et dans l’axe des deux majestueuses tours encadrant l’appel du grand large.
Il est 8h00 du matin, la chaleur est déjà moite et étouffante dans le quartier de Butuntã à São Paulo, quand le téléphone sonne chez Madame J. Elle répond instinctivement en anglais mais son interlocuteur lui répond en français. Elle s’étonne, car cela fait longtemps qu’elle n’a pas échangé dans sa langue natale. Au bout du fil, la personne se présente. Il s’agit d’une femme qui lui remémore une conversation qu’elles avaient eu en... 1998.
C’est ce genre de matin qui laisse penser qu’il ressemblera à tous les autres, mais où un coup de fil peut changer le fil d’une histoire. Celle de Madame J. en l’occurrence, partie vivre et faire affaire au Brésil dans les années 2000. Elle n’aura pas trouvé l’âme sœur mais le goût de la découverte ne l’a jamais quitté. Sa vie est ici, à São Paulo, et n’a plus réellement d’attaches en France.
Elle met du temps à comprendre ce qu’on lui raconte au téléphone. Cette femme, déterminée à la recontacter, est la propriétaire d’un petit hôtel à La Rochelle, dans lequel, Madame J. avait séjourné à plusieurs reprises. En 1998 donc. Elle travaillait à cette époque dans la construction et la préparation de voiliers de courses et se rendait régulièrement à La Rochelle. Elle avait pris l’habitude de réserver une chambre, la numéro 24, face aux tours de la Chaîne et de Saint Nicolas; dotée d’un petit balcon offrant un très beau panorama sur l’ensemble du vieux-port. Elle n’y trouvait aucun confort particulier, la décoration était sommaire et la cuisine ne méritait aucun détour. Non ce n’était pas pour l’hôtel qu’elle revenait, mais pour le lieu. Ce type d’endroit qui vous reste dans un coin de la tête, vers lequel on a terriblement envie de revenir et qui, sans se l’expliquer, vous aimante.
A force de quelques nuits passées seule, Madame J. s’était pris à rêver d’acquérir un jour cet hôtel. Elle avait imaginé des univers pour chacune des 12 chambres. Autant de dessins pour des espaces merveilleux aux influences invraisemblables. Le contact passait bien avec la propriétaire, et elle lui avait exposé ses intentions si elle venait à vendre. Mais la vie professionnelle allait éloigner Madame J. de ce côté de l’Atlantique. Et las, dans le préparatif de ses valises pour le Brésil, elle avait fini par envoyer ses cahiers d’inspirations à l’hôtel, comme pour sceller un projet révolu.
Si pour la plupart d’entre nous, le projet serait apparu totalement anachronique, 23 ans passés, Madame J. ne s’est pas dérobée devant les circonstances de ce hasard. Et quelques semaines plus tard, la voilà chambre 24. Si on fait abstraction des quelques bitoniaux de sécurité en plus; rien n’avait changé. Ce petit hôtel à bout de souffle, en forme de proue de bateau, aimantait encore Madame J.
C’est ce genre de matin qui laisse penser qu’il ressemblera à tous les autres, mais où un coup de fil peut changer le fil d’une histoire. Celle de Madame J. en l’occurrence, partie vivre et faire affaire au Brésil dans les années 2000. Elle n’aura pas trouvé l’âme sœur mais le goût de la découverte ne l’a jamais quitté. Sa vie est ici, à São Paulo, et n’a plus réellement d’attaches en France.
Elle met du temps à comprendre ce qu’on lui raconte au téléphone. Cette femme, déterminée à la recontacter, est la propriétaire d’un petit hôtel à La Rochelle, dans lequel, Madame J. avait séjourné à plusieurs reprises. En 1998 donc. Elle travaillait à cette époque dans la construction et la préparation de voiliers de courses et se rendait régulièrement à La Rochelle. Elle avait pris l’habitude de réserver une chambre, la numéro 24, face aux tours de la Chaîne et de Saint Nicolas; dotée d’un petit balcon offrant un très beau panorama sur l’ensemble du vieux-port. Elle n’y trouvait aucun confort particulier, la décoration était sommaire et la cuisine ne méritait aucun détour. Non ce n’était pas pour l’hôtel qu’elle revenait, mais pour le lieu. Ce type d’endroit qui vous reste dans un coin de la tête, vers lequel on a terriblement envie de revenir et qui, sans se l’expliquer, vous aimante.
A force de quelques nuits passées seule, Madame J. s’était pris à rêver d’acquérir un jour cet hôtel. Elle avait imaginé des univers pour chacune des 12 chambres. Autant de dessins pour des espaces merveilleux aux influences invraisemblables. Le contact passait bien avec la propriétaire, et elle lui avait exposé ses intentions si elle venait à vendre. Mais la vie professionnelle allait éloigner Madame J. de ce côté de l’Atlantique. Et las, dans le préparatif de ses valises pour le Brésil, elle avait fini par envoyer ses cahiers d’inspirations à l’hôtel, comme pour sceller un projet révolu.
Si pour la plupart d’entre nous, le projet serait apparu totalement anachronique, 23 ans passés, Madame J. ne s’est pas dérobée devant les circonstances de ce hasard. Et quelques semaines plus tard, la voilà chambre 24. Si on fait abstraction des quelques bitoniaux de sécurité en plus; rien n’avait changé. Ce petit hôtel à bout de souffle, en forme de proue de bateau, aimantait encore Madame J.

Bar-Restaurant
Club de jazz
Hôtel de bord de mer
Début : juin 2021
Surface totale :
824m2 SDP
Réhabilitation complète
Mises aux normes
Reprise en sous-oeuvre
et nouveau noyau structurel
Restructuration de la terrasse en toiture
Réorganisation du lobby pour les voyageurs
Rénovation complète du restaurant et de ses cuisines
Création d’un club
au sous-sol
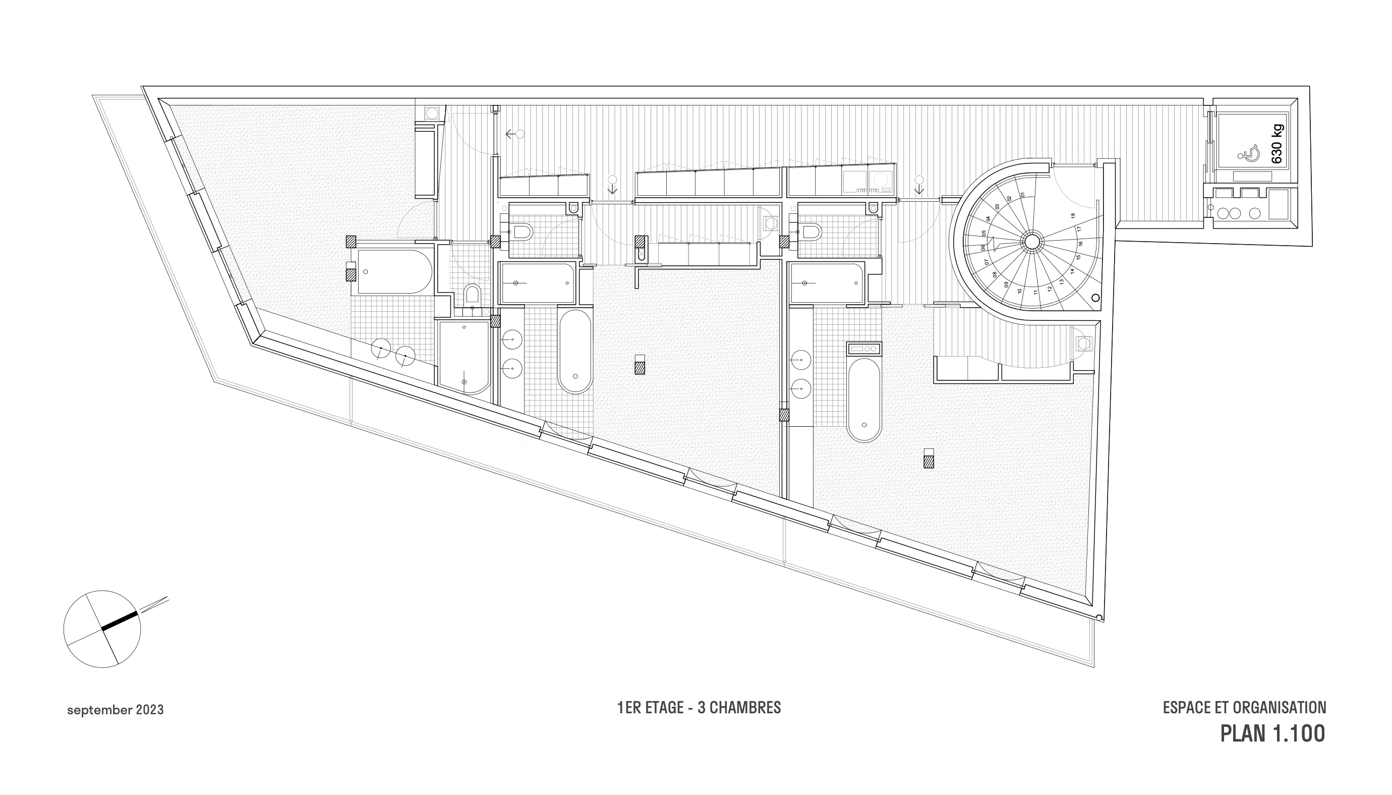
Restructuration complète des 16 chambres et sdb
Réfection des parties communes
Inventaire matériaux:
Béton + Bois de Chêne et Epicéa + Isolant fibre de bois + Menuiseries extérieures en aluminium + Tuiles canal en terre cuite + Terrasses et coursives en pin + Parquet en bois de Châtaigner + Placages en Acajou , Merbau et Noyer + Citronnier du Ceylan + Thuya du Maroc+ Store en toile cirée
Club de jazz
Hôtel de bord de mer
Début : juin 2021
Surface totale :
824m2 SDP
Réhabilitation complète
Mises aux normes
Reprise en sous-oeuvre
et nouveau noyau structurel
Restructuration de la terrasse en toiture
Réorganisation du lobby pour les voyageurs
Rénovation complète du restaurant et de ses cuisines
Création d’un club
au sous-sol
Restructuration complète des 16 chambres et sdb
Réfection des parties communes
Inventaire matériaux:
Béton + Bois de Chêne et Epicéa + Isolant fibre de bois + Menuiseries extérieures en aluminium + Tuiles canal en terre cuite + Terrasses et coursives en pin + Parquet en bois de Châtaigner + Placages en Acajou , Merbau et Noyer + Citronnier du Ceylan + Thuya du Maroc+ Store en toile cirée






LE BANANA SPLIT
BAR RESTAURANT






LE BANANA SPLIT
HÔTEL























Les chambres passent comme des voyageurs.
Mais la structure reste.
La nouvelle est additionnelle et aérienne.
Elle s’élève vers des vertiges statiques
L’existante, remodelée, est une structure terrienne.
Une masse qui fend le sol.
Mais la structure reste.
La nouvelle est additionnelle et aérienne.
Elle s’élève vers des vertiges statiques
L’existante, remodelée, est une structure terrienne.
Une masse qui fend le sol.

D’après Les Constructeurs de Fernand Léger, 1950


LE BANANA SPLIT
JAZZ CLUB







Carte des cocktails
Le banana spliiiiiit!pour enclencher les festivités et n’y voir dans l’ivresse qu’une douce écume
Le tangon
10.Bourbon au thé noir vieilli en fût de chêne
Vermouth sec au poivre rose
Liqueur de Maraschino à la cerise noire
glaçons
La drisse
9.Gin infusé au thé vert Sencha
Vermouth sec japonais
zeste de yuzu - glaçons
La yole
8.
Rhum blanc infusé à la vanille de Tahiti
jus de citron - glaçons
Le génois
12.
Whisky écossais tourbé
Crème de châtaigne
Jus de citron vert
Sirop de miel
Blanc d'œuf
bitter à la cannelle - glaçons
Rhum blanc infusé à la vanille de Tahiti
jus de citron - glaçons
Le génois
12.
Whisky écossais tourbé
Crème de châtaigne
Jus de citron vert
Sirop de miel
Blanc d'œuf
bitter à la cannelle - glaçons


pour répondre à la tentation du grand large et fendre l’armure du raisonnable
L’étrave
10.
Tequila vieillie en fûts de chêne
Grand Marnier au saffran
Sirop d’agave pur
Triple sec au pamplemousse
Yuzu - glaçons
Tequila vieillie en fûts de chêne
Grand Marnier au saffran
Sirop d’agave pur
Triple sec au pamplemousse
Yuzu - glaçons
Le bout-dehors
10.
Gin infusé au concombre et basilic
Chartreuse jaune
Sirop de lavande et citronnelle
Jus de citron vert sauvage
glaçons
Gin infusé au concombre et basilic
Chartreuse jaune
Sirop de lavande et citronnelle
Jus de citron vert sauvage
glaçons
La bôme
10.
Gin infusé à la fleur d'hibiscus
Vermouth blanc au romarin
Liqueur de fleur de sureau
zeste de citron - glaçons
Gin infusé à la fleur d'hibiscus
Vermouth blanc au romarin
Liqueur de fleur de sureau
zeste de citron - glaçons
La dérive
12.
Rhum blanc
Liqueur de mangue au piment d'Espelette
Liqueur de fruit de la passion
Jus d'ananas fermenté
Sirop à la grenade de Goa
Lime juice - glaçons
Rhum blanc
Liqueur de mangue au piment d'Espelette
Liqueur de fruit de la passion
Jus d'ananas fermenté
Sirop à la grenade de Goa
Lime juice - glaçons


pour fêter une victoire, se faire pardonner, ou carrément (mal) se faire voir
Le sextant
18.Champagne brut millésimé
St-Germain
Jus de poire fraîchement pressé
Bitter au céleri - zeste de poire confite
Le propulseur gyroscopique
58.
Vodka Grand Cru
Champagne Grand Cru
Vermouth blanc sec
Caviar beluga
Liqueur de bergamote
Safran
Vodka Grand Cru
Champagne Grand Cru
Vermouth blanc sec
Caviar beluga
Liqueur de bergamote
Safran


pour corriger au mieux la gîte quand la mer n’est plus que blanc
La quille
11.Vodka infusée au gingembre
Liqueur de café au cacao cru
Crème de cacao blanc
Café expresso infusé
Cannelle - Cardamome
Sirop de racine de réglisse
La pompe de cale
11.Vodka infusée au piment d'Espelette
Liqueur de poivron rouge grillé
Sauce tamari et Tabasco
Jus de citron - glaçons
Le pataque
13.Rhum épicé
Liqueur de café
Poivre de Sichuan
Crème de noisette de Macadamia
Café froid infusé aux fèves de cacao
Sirop d'agave
La ligne de
flottaison
12.
Gin infusé à l'algue nori
Prosecco et Tonic
au gingembre sauvage
Sirop de grenadine
Feuilles de menthe sauvage
glace pilée





